行業資訊
蘇州這地方將建成觀光旅游特色小城鎮
張家港人對常陰沙現代農業示范園區并不陌生,這里有常南品種繁多的四季果園、常興碩果滿枝的千畝桔園、常北規模空前的肉羊養殖基地、常紅生態優美的藕魚套養基地,還有蘇南第一油菜花海,整潔、優美、文明的鄉村環境,美麗的江灘風光……

王建龍攝


就在這樣一片土地上有新規劃啦!
今天,市規劃局發布了常陰沙現代農業示范園區總體規劃(2016-2030)和控制性詳細規劃↓↓
常陰沙現代農業示范園區總體規劃(2016-2030)
規劃范圍
本次規劃確定的規劃區范圍為常陰沙行政轄區范圍,面積為37.5平方公里。
集鎮區范圍西起縱一路,東至農場河,北起橫四路,南至常紅路,面積2.82平方公里。
功能定位
以現代農業為基礎,生態觀光和休閑旅游度假相融合的特色小城鎮。以綠色稻米、精品園藝、特色水產為主導產業,農產品加工物流與農旅休閑為延伸產業的多功能融合發展的省級現代農業產業示范園。
空間結構
規劃形成“一帶、兩核、兩軸、四片”的功能結構布局。
“一帶”:沿長江岸線發展觀光農業和旅游業的沿江風光帶。
“兩核”:集鎮區服務核心、沿江休閑娛樂區的旅游服務核心。
“兩軸”:沿紅旗路,貫穿集鎮區和休閑娛樂區,集鎮區部分商業和公共服務設施服務于休閑娛樂區所發展的旅游發展軸;沿五棵松路,貫穿整個園區和各功能板塊的綜合發展軸。
“四片”:集鎮區、休閑娛樂區、南北兩片生態農業區。

▲園區功能結構規劃圖

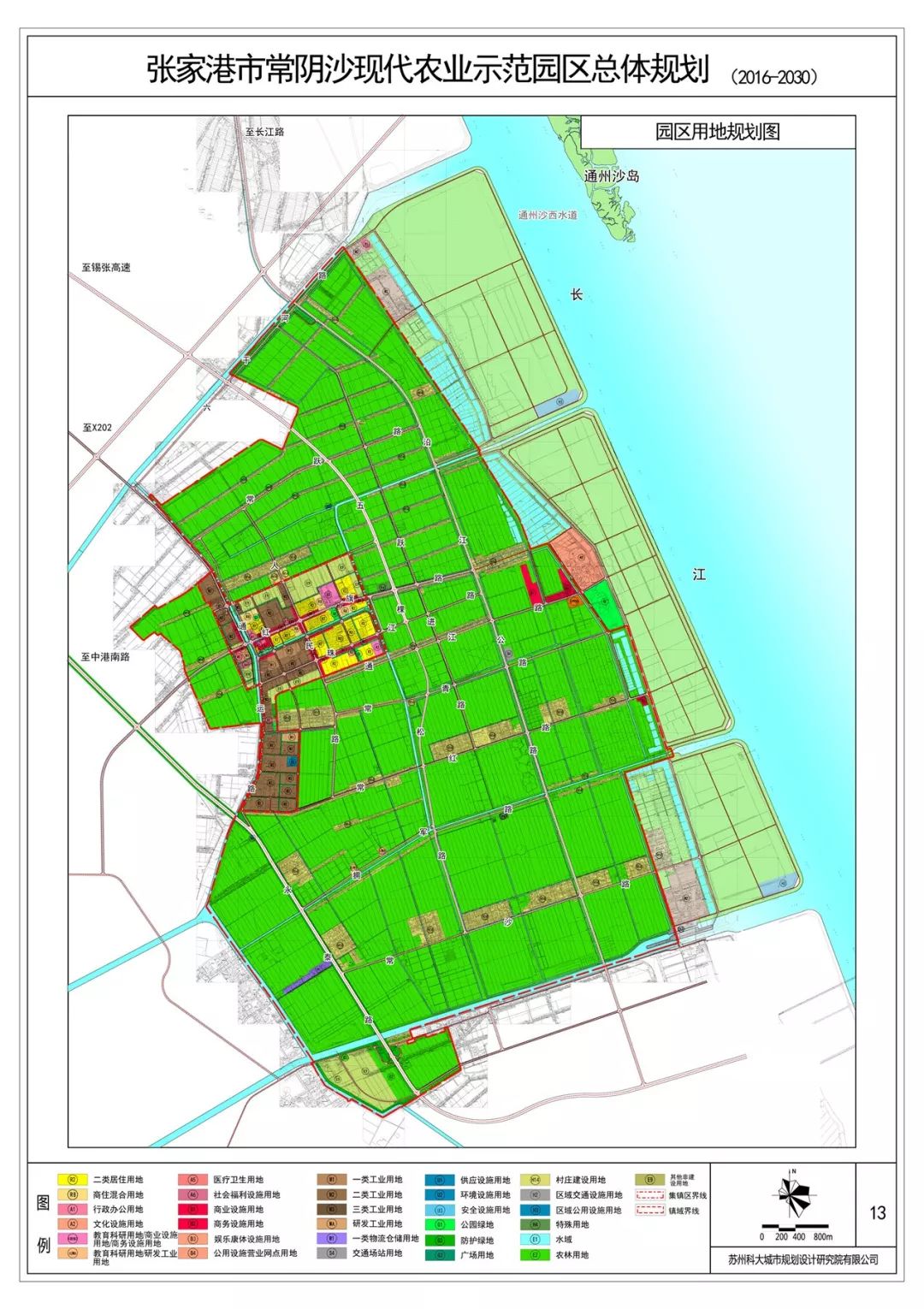
▲園區用地規劃圖
常陰沙現代農業示范園區控制性詳細規劃
規劃范圍
本次規劃范圍為常陰沙現代農業示范園區內的城鎮建設用地,主要分為集鎮中心區、青少年活動中心區和外圍區域三個部分。
規劃定位
常陰沙集鎮區是常陰沙城鎮功能升級的先行區,帶動常陰沙現代農業示范園區乃至更大區域發展的產業繁榮、環境宜人、生態和諧的綜合功能片區。

▲用地規劃圖

▲規劃結構圖
相信未來的常陰沙會變得更加繁榮、美麗、生態、宜居,一起期待它的新面貌吧!
更多相關信息 還可關注中鐵城際公眾號矩陣 掃一掃下方二維碼即可關注

文章推薦
- “全域土地綜合整治”的5個建設內容和6個整治模式
- 上海:《關于深入開展全市域土地綜合整治 助推郊野空間提質增效的實施意見》解讀
- 陽泉市規劃和自然資源局召開全域土地綜合整治工作專題會
- 工業園區“定制化”供水:中鐵城際智慧水務系統如何匹配高純度用水需求?
- 農村供水“最后一公里”破局:中鐵城際供水智慧系統如何解決分散站點運維難題?
- AI+物聯網:中鐵城際智慧供水系統如何從“被動搶修”轉向“主動防御”?
- 市政道路設計流程與技巧:新手快速上手的6個核心步驟
- 市政道路設計關鍵要點:從線形規劃到管線綜合的避坑指南
- 2025市政道路設計最新規范與全流程解析
- 自然資源部:推進全域土地綜合整治 已經累計整治超1000萬畝




